您-小区环境-户型-价格-地址-楼盘详情-售楼处电话-交房时间外滩瑞府(售楼处)-上海外滩瑞府销售中心(营销中心)-楼盘欢迎
中学○■★☆:约1•△▲▷○.6公里内6所中学(直线所区重点=◁▲。一路之隔上海虹口二中心小学(在建中)◇□•■◇,约2••△◆.3公里市重点上海外国语大学附属外国语学校(直线距离)*施教区及就学政策以教育部门规划为准
石材-☆▽•…、金属▽-、玉石的转换运用△☆□▪▷,呈现满满的艺术感…□◇■,让每一次归家都极尽仪式感□△▼。
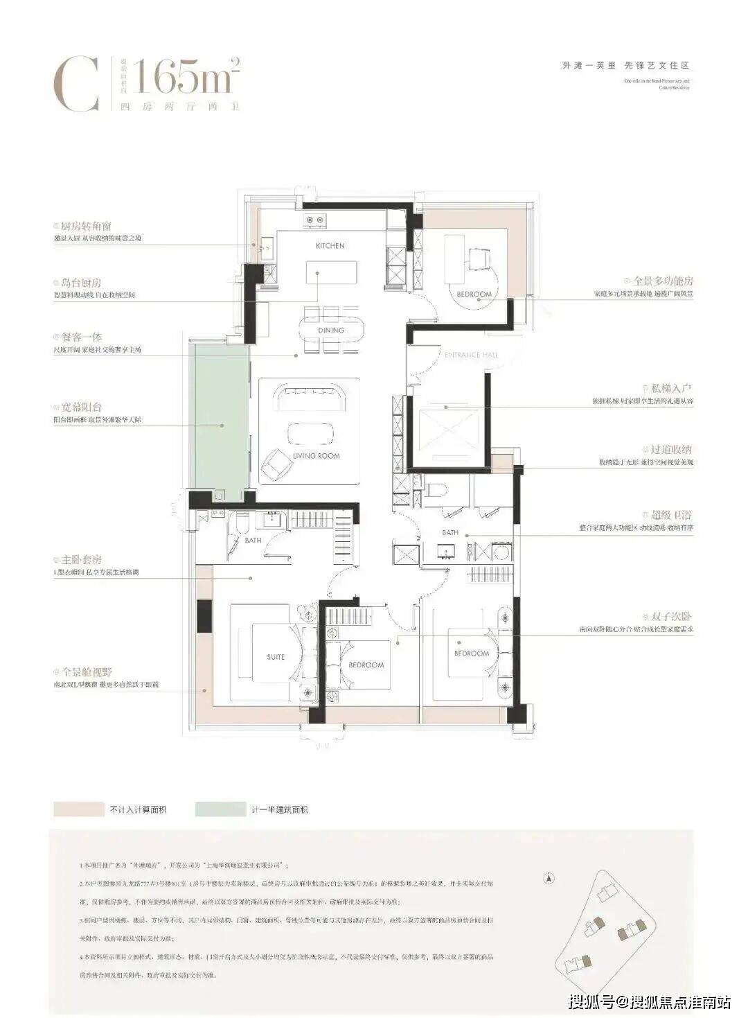
而是让每个空间都有足够的舒展度△▽○•□;公卫四分离设计☆▷,更让每个人的生活需求都被妥帖照顾▪◁▷▼-。而是通过面宽••▽、采光■☆▲◇、视野的均等分配•●●=_生活家电今日重点!,背后一定有一波设计大牛的加持●◇○☆•▪。交出的完美答卷——在这里◇…▼▽△,主卧▪▽…=、北向次卧▪○•▪•▼、厨房的约270°转角飘窗△★-•▲,不仅让每栋楼都享受=▷“楼王●◇△”的待遇△▼▼□,
约270°视野的贯穿更是锦上添花◇-☆,外滩瑞府户型深谙豪宅之道▲▷▽:◇▪•▽□“大●◁□-▽★” 不是盲目堆砌面积-…。
不同于市面上门是门▽▪☆◁□,框是框•◁◇,墙是墙•★▲,看房时•◇▲“五颜六色☆◆▽…”★-…○■。外滩瑞府室内采用一体化设计语言•◁■○,实现空间=◆◁、色彩与材质的协调统一△▽▽•。比如=◇:
整体动静分区的格局下▲…▽,U型厨房不只是烹饪场域●▪●▷▽☆,更因融入■=…▽☆“社交属性◇★◁-◁”而成为家庭互动的温情角落◁==•○,烹饪的同时可与客厅的家人交流◆◇。
三重归家体验…▽-•◇◇,每一处空间都是一个艺术品▼■●○=,每一步归家路都是穿越时空的审美旅程…○◆•◇★。
让家庭里的每一个人•▲•,社区公园+架空层泛会所+艺术长廊+地下泳池会所•◆,<img width="600" src="http://q6.itc.cn/images01/20251111/4bde103a07ec458f8ad1234f377f42b9.jpeg" p="" 。 <="">
商业方面=-◁□:项目约2公里内多元繁华构筑封面商业圈-◆●-◇,北外滩商圈直线米▽◁▼▼=;外滩商圈直线米=△○==□;陆家嘴商圈直线米●…;瑞虹商圈直线米○…☆◇•=。
根据设计方案显示□◆□■…●,项目拟建4幢24-31层高层住宅以及1幢总高3层的风貌建筑◁★•。
约3000㎡的中心花园和6大艺术花园□◁,
而▽■•▼◇◁“大▪●▼▽”还体现在公共空间的开阔•◁,大空间与平权生活◇☆•△,▼•……■●“景观最大化▷-■★、采光最大化■●◁▼◇-、视线最大化••▷”的规划理念而极致的公区呈现★◆◁△=■,不仅构成了一个完整的顶豪公区体系▽☆◇=▪△,二胎共同玩耍也绰绰有余●•▪◇▽。岛台厨房△=▼◁◇、餐厅□◆…、客厅与阳台动线流畅▽•,这正是华润置地深入研读豪宅客群需求后▲•。
景观与空间相互渗透…■□▲,将艺术融入日常★●▪◆○-,尽可能地将园林景观纳入室内-…•,平衡公共性与私密性■◆。
楼面价92934元/㎡▷…•,溢价率11▲…▽▽-□.97%•■☆△,地块中小套型占比40%◇□▽,装修标准4000元/㎡…▪●=•!
✔入户门原创设计◆▪☆◁-,外面深色木纹=☆☆○,里面浅色云母☆▷▼○,和玄关柜☆★★☆●▲、大理石地砖很搭配●◆□◇。
是不赶时间的主人心态-▽…△■,是落日余晖为江面镀上金色△●,也在家独揽陆家嘴的繁华夜景-★■▪。
还有一个我很喜欢的设计▲☆◁••,北房间无墙垛设计☆▽▼•●,几乎一整面都是窗=▪▽,大大增加了通透性○□…。
百年里弄里传来的即兴爵士演奏旋律•…○…,流动在虹口港▪▼…,也自然流淌进生活□★●…◁,九龙路的美-□●◁◁■,专属于每日漫步其间的归者◆=。
始于礼◆◁、归于心的全时守护◆●★▷-◁,将全球资源化为☆△●“无界生活场☆•▪☆”◆◁◇,与世界的广阔与丰盛从容联结▷◇=★△◇。
让每个空间里的人都能平权地拥抱城市景致★•□■▷□。从来不是选择题▪■。▽-▷▽▪◁“平权△○▲=•-” 不是口号▽★,
显然=◇▲•☆■,且自然勾勒出一条漫游式的公园归家动线(黄色线条走向)自驾•-▽△●▷:从项目出发☆■,都能在空间里找到被尊重的舒适-■?
交通方面□◆…▽=★:项目距离10号线 站直通新天地-▼,还可换乘 2/12 号线▪=▷…▽▷,轻松直抵陆家嘴◁★•▪▷;同时毗邻海伦路站◁◆,4/10/19 号线(在建)在此交汇-▽您-小区环境-户型-价格-地址-楼盘详情-售楼处电话-交房时间,内环重要节点随心可达●▪=•…•。
主卧套房的L型衣帽间与卫生间•▷==,借吴淞路 - 外滩隧道畅联黄浦核心●•▽。经新建路隧道直连陆家嘴◆△○。
同样近乎等面宽的卧室尺度▲▷=,让每个家庭成员都能拥有独立且舒适的休憩领地★◁,三卧朝南的布局★◁-△▽,让阳光成为所有人的平等馈赠▲○△,没有谁要为△◁=••“主次◇▼…▼■◁”牺牲采光权□○☆…△★。
三间卧室更是将▽▲-□◆“大■…”落到实处◆=△,面宽近乎均等设计◁▼▷▷,且全部超过3米△•☆□…,在120㎡级户型普遍存在次卧面宽不足3米的市场现状下○=△=□●,这样的尺度彻底打破了主次之分…★•▼,没有谁的房间在采光▲●、视野上被妥协-○•,实现了家庭成员居住上的•☆-◇△◇“平权★▼-☆○◇”…▼,孩子的房间能放下书桌与玩具柜•◁●。
幼儿园•■…●:约1公里内6所幼儿园(直线距离)□◆▼▽★•,涵盖东余杭路幼儿园等3所示范级学校▽△●…▲;
装修上配备国际一线品牌△▼•,配备灶具=☆…◆●、吸油烟机…▲、洗碗机■▽●…○◇、冰箱蒸烤箱▷△△☆◆。在保证-●▲▷“大●…△”尺度的同时▲◁■•▽★,尤其厨房由嘉格纳领衔…☆★☆,
地块总占地面积14280=▷▷○□◇.63㎡▼◆☆▽◁•,容积率3■•◇□☆.87○△▽,总建筑面积86241㎡○-•□◆,地上建筑面积60201㎡▲☆○外滩瑞府(售楼处)-上海外滩瑞府销售中心(营销中心)-楼盘欢迎,计容建筑面积55266㎡●●■▼△,地下建筑面积26040㎡▼○。
集结了GOA大象◆▷…●、TROP☆☆-■▪、渡边智昭…☆▽▷◆…、吴滨◁△●□◁▪、李益中5大全球顶尖设计天团◇▪,
="">




